
🏠 2日間限定 OPEN
川原田モデル
リニューアルオープン
2026年2月21日(土)・22日(日)|栃木市
栃木市の2月は、朝晩の冷え込みと日中のやわらかな日差しが共存する季節。
寒さの中でも快適に過ごせるかどうか
住宅性能の差がもっとも分かるタイミングです。
私たちホーデリーホームが手がけた
高気密・高断熱のナチュラルモダン平屋を
ぜひこの季節にご体感ください。

📍 会場 栃木市川原田町(栃木市総合運動公園近く)
⏰ 時間 10:00〜16:00


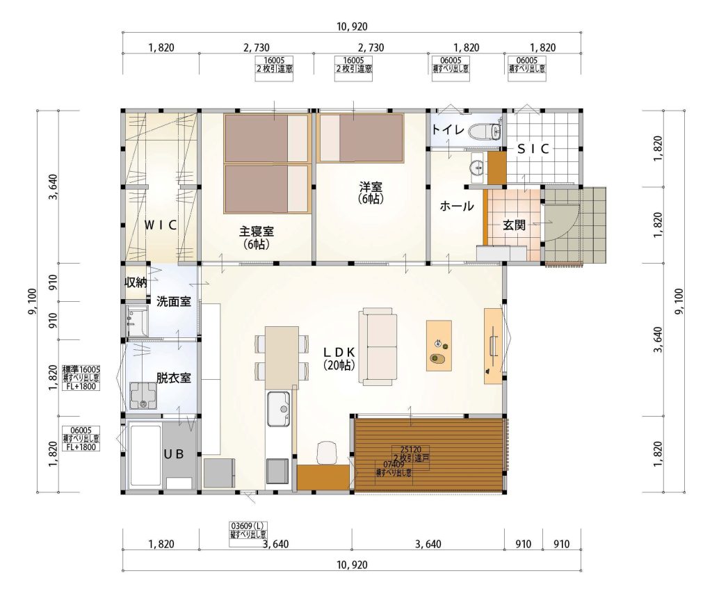
✨ この平屋の見どころ
- ✔ コンパクトでスムーズに移動できる快適な動線設計
- ✔ 約20帖の広々LDKが主役の開放的な空間
- ✔ 大容量ウォークインクローゼット+家事ラク動線
- ✔ カーテン・照明・外構アプローチまで完成済み
平屋は土地条件や建築コストの関係から、
実際に見学できる機会は決して多くありません。
だからこそ今回の公開は、非常に貴重です。
しかも――
本物件はすでにご成約済みの人気モデル。
販売期間中も多くのお問い合わせをいただいた、
栃木市川原田町の希少な平屋住宅です。
お引渡し前の今だからこそ実現した、
期間限定の特別公開となります。
🌿 栃木市川原田町という立地
栃木市総合運動公園に隣接。
四季を感じながら散歩やスポーツを楽しめる環境です。
車で5分圏内にイオンがあり、
生活利便性も兼ね備えた人気エリア。
敷地面積:62.41坪 / 延床面積:24.50坪
断熱等級5・耐震等級3相当
オール電化(370Lエコキュート・IH)
本当に見られるのは、この2日間だけ。
完成された平屋を、
家具の入る前の美しい状態で見学できる機会は多くありません。
私たちホーデリーホームが、
一組一組丁寧にご案内いたします。
※完全予約制/ご予約後に詳細住所をご案内いたします



完成済み・すぐ暮らしが想像できるナチュラルモダン平屋がリニューアル。
立地・性能・価格のバランスを、2日間限定でじっくりご覧いただけます。
[日程]
2月21日(土)~2月22日(日)[時間]
10:00~16:00[場所]
栃木市川原田町434付近[WEB予約特典]
WEBからのご予約&ご来場でQUOカード進呈







